24小时咨询电话
027-82411111
当前位置 : 首页 > 6686官网网页版 > 赵雯婷
找TA设计
经验丰富
"6686官方版app" DESIGNER
686官方版app - 赵雯婷 设计总监
从业时间 : 2004 作品数量 :4套
司 : 华中超级旗舰店
6686官方版app - 业主评价 :
    • 家里很有档次
    • 设计思路明确
    • 设计水平很高
    • 有创意
    • 有责任心
    • 服务态度好
    法式,意式风,奶油风,欧式,宋氏美学
    • 个人简介
    • 设计理念
    • 经典楼盘
    • 全国资深设计师全国优秀设计师

      中国建筑装饰协会高级会员

      中国建筑装饰协会高级软装艺术设计师


      荣获奖项:

      2011年美克美家新星杯亚军设计师

      2012年全国优秀设计师

      2013年全国资深设计师

      2014年都市达人设计挑战赛翡翠奖

      2018年筑巢杯全国优秀作品奖


    • 设计不仅仅是对艺术理念的一种构造,也是对生活态度的一种诠释 6686官方版app,追求细节,将实用和形美做到更精辟的融合。


    • 兴华御水澜湾. 世茂锦绣长江. 万科高尔夫. 复地东湖国际. 楚天都市沁园. 华中科技大学高层(康园)小区 6686官方版app. 广电光谷家. 惠济苑.....


    相关案例
    户型解析
    在施工地
    其他案例推荐
    "6686官方版app"
    相关案例
    户型解析
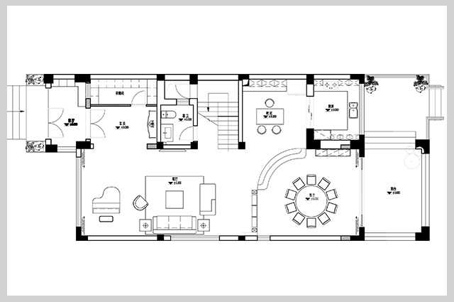
    梦湖香郡267平方米复式简欧豪宅户型解析
    LOFT
    267m²
    "6686官方版app" 简欧风

        案例解析:


        喧嚣的城市 6686官方版app,如何构建一所心灵栖息所成为了大多数人所思考追求的,而对于退休老人而言更是如此,退休老人多追求简约,舒适而又带有沉稳韵味的空间,因此设计师在进行房屋设计时优先从老年人的审美及需求角度出发,细节处追求人性化元素,以让房屋能够更好的为居住者服务。


        户型分析:


    1.jpg


    2.jpg


    3.jpg


        这是一所坐落在梦湖香郡的267平方米复式大别院,空间户型方正 6686官方版app,南北通透且采光好,因此设计师在进行设计的时候将空间户型优势发挥到极致,利用大面积的落地窗设计让室内空间看起来更加明亮洁净,为满足业主的审美需求,空间整体使用了较多深色元素,以营造一种沉稳氛围,再搭配以欧式风情元素,强调典雅复古魅力。


        客厅:


    4.jpg


        会客区域的设计相对比较简约,通过简约的色彩搭配来营造一种洁净温馨的氛围,而该空间最大的设计亮点是将隔断墙直接设计为电视背景墙 6686官方版app,一墙两用,有效提升了空间利用率。


        餐厅:


    5.jpg


        由于房屋大多数情况下是由退休老人一个人居住,因此没有在就餐区域使用较多的面积 6686官方版app,而是在满足使用需求的前提下追求一种沉稳大气感,借助酒柜,大理石餐桌来营造一种浑厚大气的贵族气息。


        卧室:


    6.jpg


    QQ截图20220127173636.jpg


        为了提升睡眠质量 6686官方版app,卧室使用了相对较多深色色彩进行装饰,深褐色的地毯,黑色的墙面,很好的营造了一种夜幕降临的宁静氛围感,而白色的吊顶设计,则让空间多一份清新韵味。


        书房:


    QQ截图20220220121654.jpg


        业主是一个喜欢阅读的人士,因此设计师在进行空间规划设计的时候特意预留出一个空间作为书房 6686官方版app,同时借助书柜墙装饰点缀空间,在满足业主使用需求的前提下营造一种高雅气息。


        卫生间:


    图片1.jpg


        卫生间区域使用了相对比较不起眼的玻璃门隔断,以避免空间显得压抑,而带有艺术画的墙面设计搭配上设计感十足的小浴缸,一种雍容华贵之感呼之欲出 6686官方版app


    6686官方版app - 在施工地
    • 开工
    • 前期
    • 中期
    • 后期
    • 竣工
    "6686官方版app" 预约设计师
    海量行家, 抢订6686注册设计服务
    每日前20名申请用户, 获3D装修设计图
    预约设计师
    姓名*
    楼盘*
    电话*
    *为了您的权益, 您的隐私将严格保密
    6686注册获取同款设计方案 (6686官方版app)
    姓名*
    楼盘*
    电话*
    *为了您的权益, 您的隐私将严格保密
    预约成功
    您已报名成功, 稍后会有客服人员联系您。 您的隐私将被严格保密。
    关注二维码了解6686体育装修知识
    联系我们
    "6686官方版app" 装修咨询电话 : 027-82411111
    售后服务电话 : 027-82866788
    公司地址 : 6686平台市江岸区澳门路232号金冠大厦
    6686登录我们
    友情链接 : (6686官方版app)
      66866686官方版app下载官方版-6686官方版app下载2025最新 页面版权所有 jingyu-design.cn

      "6686官方版app" 算一算,您家装修需要花多少钱?

      知精准报价 避装修深坑

      01/03 (6686官方版app)

      选择您喜欢的风格

      • 现代轻奢

      • 现代美式

      • 北欧

      • 新中式

      • 欧式

      • 其他

      "6686官方版app" 算一算,您家装修要花多少钱?

      知精准报价 避装修深坑

      02/03

      选择房屋面积区间

      • 80-100㎡
      • 100-140㎡
      • 140-200㎡
      • 200-300㎡
      • 300㎡以上

      "6686官方版app" 03/03

      您的户型

      • 两居室

      • 三居室

      • 四居室

      • 五居室

      • 六居室

      算一算,您家装修要花多少钱?

      知精准报价 避装修深坑 (6686官方版app)

      0%

      稍等片刻,您的报价正在生中......

      算一算,您家装修要花多少钱?

      知精准报价 避装修深坑

      您的完整报价已经生成

      报名成功享抢订优惠名额

      每日仅限前10名用户