24小时咨询电话
027-82411111
当前位置 : 首页 > 6686官网网页版 > 王晶
找TA设计
经验丰富
DESIGNER (6686官方版app)
686官方版app - 王晶 设计总监 (6686官方版app)
6686官方版app - 从业时间 : 2004 作品数量 :10套
司 : 总部旗舰店
业主评价 :
    • 亲自指导施工
    • 工作细致
    • 设计精细
    • 设计方案有创意
    • 认真负责
    • 审美品位高
    轻奢,美式,新中式,欧式
    • 个人简介
    • 设计理念
    • 经典楼盘

    • 行业资质:

      中国装饰协会高级会员

      中国建筑装饰协会高级室内建筑师


      荣获奖项:

      2017年第三届空间艺术设计大赛(友谊杯)一等奖

      2018第六届HI-Design室内设计大赛优秀作品奖

      2019年欧亚达DK设计大赛金奖

      2020年福田杯中国十佳设计师

      2021年第五届空间环境艺术设计大赛(欧普杯)优秀奖

      2022年中国室内设计年度评选设计优秀奖


    • 设计源于生活,生活因设计而改变 6686官方版app,成就空间和谐,让设计无忧所值,让细节缔造完美.


    • 复地东湖,元舍,月亮湾壹号 6686官方版app,西北湖壹号,华侨城,汉口城市广场,梦湖香郡,顶琇国际城,华发外滩首府,华润翡翠城.

    相关案例
    户型解析
    在施工地
    其他案例推荐
    "6686官方版app"
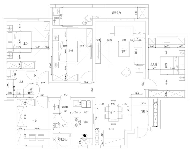
    户型解析
    复地东湖国际 170㎡四居室美式格调住宅户型解析
    四居室 (6686官方版app)
    6686官方版app - 170m²
    美式

        案例简介:本案例的业主是高级白领,对家有着自己独特的了解,因此在与设计师交流的时候表达了自己希望拥有一个个性化的家居空间,同时,由于业主夫妇目前带有一个刚上幼儿园的小朋友,因此在设计的时候希望能够将童真也融入其中,为孩子打造一个趣味十足的生活空间,基于此,设计师选择了个性感相对比较浓厚的美式装修风格,再搭配以各种清新明丽的色彩,来营造一种自由洒脱而又不失童真的个性家居 6686官方版app


        户型解析:






        复地东湖国际这套170㎡的四居室住宅户型相对比较平整方正,而由于入户门在房屋偏角处,因此设计师在进行规划设计时就利用入户门轴向作一个划分,将作伴区域作为业主的办公,休憩区域,中间则设置为会客区域 6686官方版app,右边则打造为儿童房,有效提升了各个功能区域的划分。


        玄关:




        一个简洁的白色储物柜搭配上褐色矮脚小凳就构成了玄关处的软装 6686官方版app,简约耐看而又不失实用性。


        客厅:


        浅蓝色墙面搭配上简约的风景画,一种悠然自得的清新感流淌在空间,而柔软的深灰色丝绒沙发,则为空间增添了品质格调 6686官方版app


        餐厅:




        淡蓝色的墙面为就餐区域增添了一抹清新明丽的氛围 6686官方版app,而造型优雅的餐座椅则让整个就餐区域多了一抹精致的浪漫感。


        厨房:




        大面积的浅色瓷砖确保了厨房油烟能够得到更好的清理 6686官方版app,而悬挂式橱柜的存在则有效提升了空间利用率。


        卧室:




        卧室区域使用了大面积的浅色作为主基调色 6686官方版app,营造温馨柔和氛围,而撞色的床具则让整个卧室更具个性感。


        卫生间:






        半圆弧的玻璃滑门既可以起到干湿分离的作用 6686官方版app,又为卫生间增添了一抹艺术氛围。


    6686官方版app - 在施工地
    • 开工
    • 前期
    • 中期
    • 后期
    • 竣工
    6686官方版app - 预约设计师
    海量行家, 抢订6686注册设计服务
    每日前20名申请用户, 获3D装修设计图
    "6686官方版app" 预约设计师
    姓名*
    楼盘*
    电话*
    *为了您的权益, 您的隐私将严格保密
    推荐相关案例
    6686注册获取同款设计方案 (6686官方版app)
    姓名*
    楼盘*
    电话*
    *为了您的权益, 您的隐私将严格保密
    预约成功
    您已报名成功, 稍后会有客服人员联系您。 您的隐私将被严格保密。
    关注二维码了解6686体育装修知识
    6686登录我们 (6686官方版app)
    6686官方版app - 澳华历程
    官方微博
    联系我们
    装修咨询电话 : 686官方版app - 027-82411111
    售后服务电话 : 027-82866788
    公司地址 : 6686平台市江岸区澳门路232号金冠大厦 (6686官方版app)
    6686登录我们
    "6686官方版app" 友情链接 :
      66866686官方版app下载官方版-6686官方版app下载2025最新 页面版权所有 jingyu-design.cn

      算一算,您家装修需要花多少钱?

      知精准报价 避装修深坑 (6686官方版app)

      01/03

      选择您喜欢的风格

      • 现代轻奢

      • 现代美式

      • 北欧

      • 新中式

      • 欧式

      • 其他

      算一算,您家装修要花多少钱?

      知精准报价 避装修深坑

      "6686官方版app" 02/03

      选择房屋面积区间

      • 80-100㎡
      • 100-140㎡
      • 140-200㎡
      • 200-300㎡
      • 300㎡以上

      03/03

      您的户型

      • 两居室

      • 三居室

      • 四居室

      • 五居室

      • 六居室

      "6686官方版app" 算一算,您家装修要花多少钱?

      知精准报价 避装修深坑

      0%

      稍等片刻,您的报价正在生中......

      算一算,您家装修要花多少钱? (6686官方版app)

      知精准报价 避装修深坑

      您的完整报价已经生成

      6686官方版app - 报名成功享抢订优惠名额

      每日仅限前10名用户