24小时咨询电话
027-82411111
当前位置 : 首页 > 6686官网网页版 > 孙雄志
找TA设计
认真负责
"6686官方版app" DESIGNER
孙雄志 设计总监
从业时间 : 2011 "6686官方版app" 作品数量 :18套
司 : 华中超级旗舰店
业主评价 :
    • 设计思路明确
    • 实用性强
    • 沟通轻松
    • 设计方案有创意
    • 装修效果有质感
    • 经验丰富
    轻奢,法式,意式风,北欧
    • 个人简介
    • 设计理念
    • 经典楼盘
    • 6686平台市装饰协会注册高级设计师

      5+设计会精英设计师协会会员

      5+设计会精英设计会课员

      6686平台市“金意·陶”杯十佳新锐设计师

      2013年第二届6686平台DK设计大赛三等奖

      2016年获得6686平台装饰协会年度优秀青年设计师

      2017年获得6686平台装饰协会 年度优秀设计师

      2018年获得6686平台市黄鹤杯设计大赛“三等奖”

      2018年获得6686平台装饰协会年度优秀设计师

      2019年获得6686平台装饰协会年度优秀设计师

      2020年6686平台市十佳设计师

      2021年获得6686平台装饰协会年度优秀设计师

    • 去繁从简 —— 去掉繁杂的设计元素,寻求完善的空间功能,让快节奏的工作生活在回到家的那一刻慢下来 6686官方版app


    • 华侨城原岸,纯水岸东湖,华侨城欢乐天天际,华侨城红坊,中信泰富滨江金融城 6686官方版app,华发外滩首府,华发公园首府,碧桂园云境叠墅,书院世家联排等.

    相关案例
    户型解析
    在施工地
    其他案例推荐
    "6686官方版app"
    户型解析 (6686官方版app)
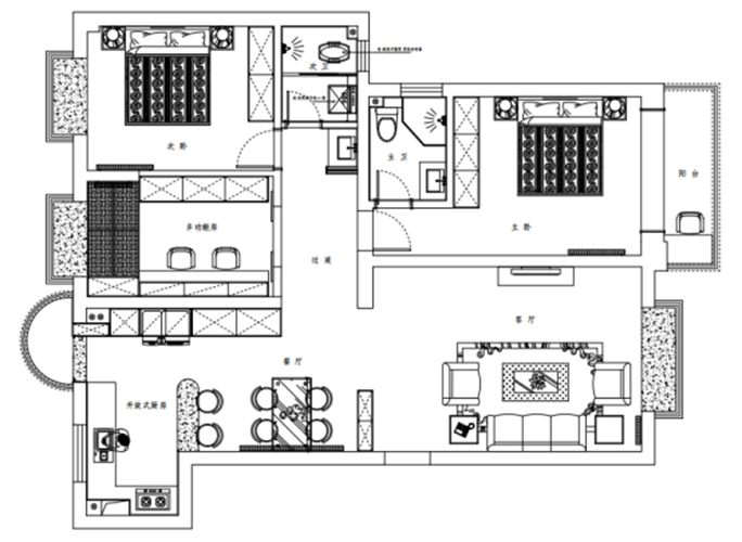
    陆景苑 138㎡ 三居室现代轻奢格调小窝户型解析
    "6686官方版app" 三居室
    138m²
    轻奢风

        案例简介:本案例业主夫妇对生活充满了热情,偏爱现代简约风的文化,因此在进行家居设计的时候希望设计师能够使用最简约的元素打造出格调感 6686官方版app,而在与业主深入交流后,设计师了解到这对夫妻平常最大的兴趣爱好就是读读书,因此在进行空间规划的时候预留了一个专门的书房,同时,整体的装修风格选为现代轻奢风,以满足业主的审美需求。


        户型解析:


        陆景苑的这套138㎡的三居室住宅为朝西户型,整体的结构四四方方且没有犄角,最大的问题在于不够通风透气 6686官方版app,且阳光难以进入室内,因此设计师在进行规划设计的时候,很大程度上保留了原来的户型功能结构,同时将各个功能区域的窗户进行扩大处理,有的直接改造为落地窗,以提升室内采光,通风效果。


        客厅:



        客厅区域以灰色为主基调色,点缀以少量黑色,简约耐看而又时尚 6686官方版app,圆形吊灯简约而又不失设计感,为空间增添艺术气息。


        餐厅:




        就餐区域面积并不大,因此设计师在设计师没有使用繁琐的设计 6686官方版app,而是借助木材的纹理装饰空间,再点缀以绿植,清新耐看。


        厨房:



        为了节约室内空间,厨房被打造为半开放式,同时借助吧台打造迷你就餐区域,有效提升空间利用率 6686官方版app


        书房:



        为提升空间利用率,书房空间选用了大量收纳设计,同时,借助大面积的窗户引进自然光,提升书房使用舒适度 6686官方版app


        卧室:





        简约的白色点缀上深色床具,质朴简约而又不失高级感,与白色墙面融为一体的衣柜实用性强且不会过于突兀 6686官方版app


    "6686官方版app"
    在施工地
    • 开工
    • 前期
    • 中期
    • 后期
    • 竣工
    预约设计师
    海量行家, 抢订6686注册设计服务
    每日前20名申请用户, 获3D装修设计图
    预约设计师
    姓名*
    楼盘*
    电话*
    *为了您的权益, 您的隐私将严格保密
    推荐相关案例
    6686注册获取同款设计方案
    姓名*
    楼盘*
    电话*
    *为了您的权益, 您的隐私将严格保密
    6686官方版app - 预约成功
    您已报名成功, 稍后会有客服人员联系您。 您的隐私将被严格保密。
    关注二维码了解6686体育装修知识
    联系我们
    装修咨询电话 : 027-82411111
    "6686官方版app" 售后服务电话 : 027-82866788
    公司地址 : 6686平台市江岸区澳门路232号金冠大厦
    6686官方版app - 6686登录我们
    友情链接 :
      66866686官方版app下载官方版-6686官方版app下载2025最新 页面版权所有 jingyu-design.cn

      "6686官方版app" 算一算,您家装修需要花多少钱?

      知精准报价 避装修深坑

      01/03

      选择您喜欢的风格 (6686官方版app)

      • 现代轻奢

      • 现代美式

      • 北欧

      • 新中式

      • 欧式

      • 其他

      "6686官方版app" 算一算,您家装修要花多少钱?

      知精准报价 避装修深坑

      686官方版app - 02/03

      选择房屋面积区间

      • 80-100㎡
      • 100-140㎡
      • 140-200㎡
      • 200-300㎡
      • 300㎡以上

      03/03

      您的户型

      • 两居室

      • 三居室

      • 四居室

      • 五居室

      • 六居室

      算一算,您家装修要花多少钱? (6686官方版app)

      知精准报价 避装修深坑

      0%

      稍等片刻,您的报价正在生中......

      算一算,您家装修要花多少钱? (6686官方版app)

      知精准报价 避装修深坑

      您的完整报价已经生成

      报名成功享抢订优惠名额

      每日仅限前10名用户